Direccion

Carlos Tejedor 41 - Lanusita

Telefono

4240-9333 || 4241-4006 || 4241-4007

Whatsapp

1157159555

Volver Volver al listado

Lans Park - Residencias en Altura en Lanusita

direccion 20 de Setiembre 2874, Lanús Oeste

Acerca del emprendimiento Torre Residencial Lans Park   -   Residencias Exclusivas en Altura


Un Edificio de diseño vanguardista, concebido en la zona más prestigiosa de la Ciudad, donde la arquitectura se fusiona con el confort para dar lugar a un nuevo concepto de vida urbana. 

"A tan solo dos cuadras del reconocido polo gastronómico / comercial de Lanusita, el proyecto ofrece la comodidad de tener todos los servicios y comercios al alcance, sin resignar la tranquilidad y el espíritu barrial que tanto valoramos los lanusenses."

Este desarrollo ofrece Departamentos de 3 ambientes al frente y 2 ambientes al contrafrente, todos con terminaciones de primer nivel, espacios luminosos y distribución funcional.

El proyecto cuenta con amenities de categoría, pensados para el disfrute y la comodidad cotidiana, además de grupo electrógeno que garantiza el funcionamiento esencial en todo momento.

Actualmente en etapa de finalización, este Emprendimiento combina estética contemporánea, eficiencia constructiva y detalles de calidad que marcan la diferencia.

Más que un edificio, es una propuesta de vida moderna, segura y exclusiva en el corazón de la ciudad, pensado y diseñado para quienes eligen "otra manera de vivir", dando preponderancia a la calidad, el espacio y la luminosidad sumado a una ubicación estratégica, céntrico y a la vez tranquila, donde aun el verde de la Ciudad se vislumbra 


El Proyecto
+ 12 pisos de residencias exclusivas.
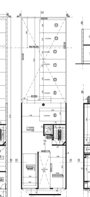
+ Planta Baja: cocheras cubiertas + hall de acceso en doble altura.
+ Planta Entrepiso (1º piso): 2 oficinas + 1 departamento de 2 ambientes al contrafrente.
+ Plantas Tipo (2º al 11º) Semipisos de:
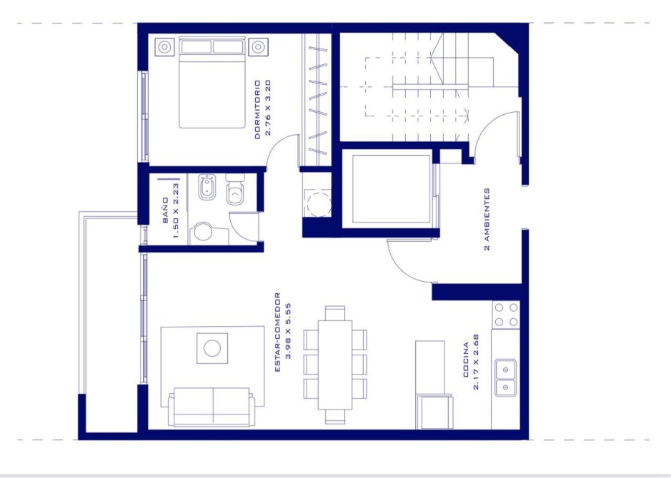
+ Unidad de 3 ambientes al frente: 64,25 m² propios + balcón de 8,79 m².
+ Unidad de 2 ambientes al contrafrente: 48,98 m² propios + balcón de 5,80 m².
+ Planta  (12º piso): Depto. 2 amb.(contrafrente) + 2 SUM tipo Quinchos  de uso común con baño, al frente.
+ Planta  (Terraza): Solarium


Características Generales - Espacios Comunes

+ Carpinterías de aluminio color negro con doble vidrio hermético (DVH) laminados y mosquiteros. Herrajes y rodamientos de 1ra calidad. 
+ Portero eléctrico visor con intercomunicador + pantalla LED.
+ Portón de acceso automático en acero inoxidable para cocheras.
+ Ascensor de primera marca con sistema de seguridad por huella digital o clave personal.
+ Grupo electrógeno para abastecimiento de servicios esenciales.
+ Dos quinchos semi-cubiertos con parrilla, mesada y mobiliario, preparados para recibir entre10 y 20 personas respectivamente, con baño de uso común. 


Características Generales - Departamentos

Cocina - Lavadero
+ Pisos y revestimientos en porcellanato de primera calidad.
+ Mesada en SPL con bacha Johnson o similar.
+ Grifería FV monocomando.
+ Anafe y horno eléctrico empotrados e integrados al mobiliario.
+ Muebles bajo mesada + alacena marca 4 líneas (Premium).
+ Barra desayunador hacia el sector del Living Cdor.
+ Ventilación individual con salida al exterior.

Baños
+ Pisos y revestimientos en porcellanato SPL premium.
+ Moderna Ducha en desnivel con desborde.
+ Grifería monocomando, marca FV, modelo Puelo.
+ Cielorraso en yeso pintado al látex mate.
+ Ventilación individual forzada. En los deptos. de 2 ambientes, ventana tipo raja para iluminación y ventilación natural.

Dormitorios
+ Pisos y zócalos en porcellanato SPL de primera calidad.
+ Preinstalación para aire acondicionado (equipos split opcionales).
+ Paredes y cielorraso en yeso pintado al látex mate.
+ Placares completos con frentes e interiores en melanina y guías de aluminio.
+ Dormitorio principal (en unidades de 3 ambientes) con vestidor exclusivo.

Estar - Comedor
+ Pisos y zócalos en porcellanato SPL de primera marca.
+ Preinstalación para aire acondicionado + provisión de equipos Split frio-calor.
+ Paredes y cielorraso en yeso pintado al látex mate.

Balcones
+ Pisos en porcellanato SPL.
+ Barandas de vidrio laminado con estructura de aluminio, diseño moderno y liviano.
 

Posibilidad de anticipo y cuotas con financiacion privada directa del Desarrollador de hasta 18 meses 

Consulta por tu modalidad de pago mas conveniente para vivir en lo mejor de Lanus
Ubicación
Consultar por emprendimiento
Lans Park - Residencias En Altura En Lanusita

Comunicate con nosotros

error

error

error

error


Chatea con nosotros situacion
contacto No dudes en contactarte con nosotros contacto
Whatsapp WHATSAPP telefono LLAMAR
Comunicate con nosotros

error

error

error

error